Kunne lignende byggerier have interesse for dig?
Skriv dig op, så holder vi dig opdateret om kommende projekter.
Byggeår: 2005
Vosnæsparken – Løgten
Andelsboligforeningen Havblik
Alle boliger er solgt, og afleveret til deres nye ejer
Beskrivelse
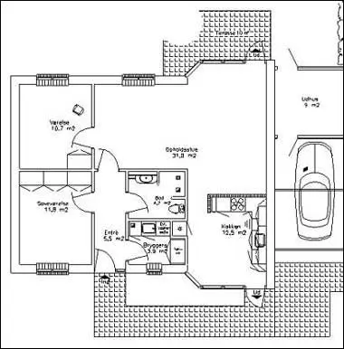
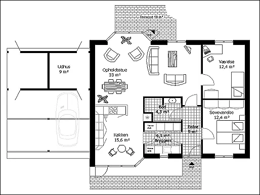
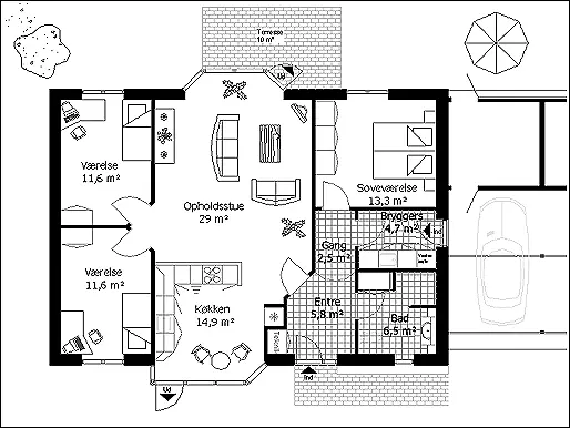
Vibe-Huse A/S har opført 30 andelsboliger i Vosnæsparken i Løgten/Skødstrup, bestående af 3 forskellige typer på henholdsvis 95, 107 og 116 m².
Boligerne er beliggende med udsigt over Århusbugten og beliggende tæt ved både skov og strand
Løgten eller (Løgten-Skødstrup) er en stationsby i Østjylland med omkring 8.000 indbyggere, beliggende i Skødstrup Sogn som satellitby knap 18 kilometer fra Aarhus C. Løgten ligger i Aarhus Kommune og hører til Region Midtjylland. I det større lokalsamfund Skødstrup-Løgten er der 9.100 indbyggere.
Byens tætte placering på skov, strand, storbyen Aarhus samt dens infrastruktur med motorvej og jernbane (Djurslandmotorvejen på strækningen Skødstrup-Lisbjerg samt nærbane med stop ved både Løgten S og Skødstrup S) har medvirket til en kraftig udbygning af hundredvis af nye huse.
Skødstrup, som oprindeligt bebyggelsesmæssigt var adskilt fra Løgten, har en af Danmarks ældste kirker, Skødstrup Kirke. I Løgten er der opført et højhus med 20 luksusboliger. Byggeriet er opført omkring en gammel silo, der har fået navnet Siloetten. Landsbyen Segalt ligger lige nord for byen og er bebyggelsesmæssigt, næsten vokset sammen med Løgten, her ligger Segalt Mølle, som er den eneste mølle med 6 vinger i Danmark.
Plantegninger
Type 95 m² - 2 stk.
Type 107 m² - 6 stk.
Type 116 m² - 16 stk.
Beliggenhedsplan
