Kunne lignende byggerier have interesse for dig?
Skriv dig op, så holder vi dig opdateret om kommende projekter.
Byggeår: 2003
Skovhøj – Hasselager
Andelsboligforeningen Udsigten
Alle boliger er solgt, og afleveret til deres nye ejer
Beskrivelse
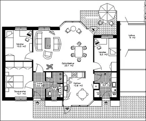
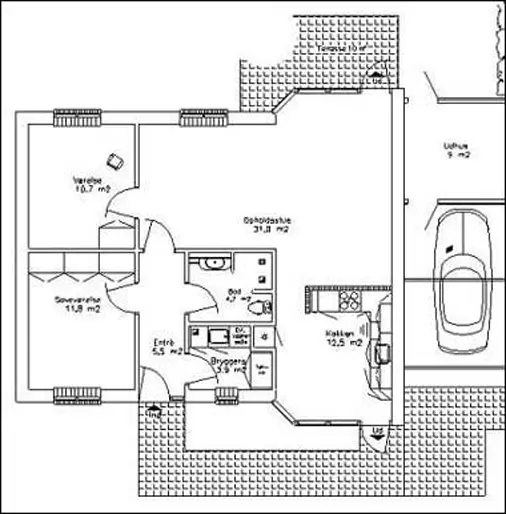
Vibe-Huse A/S opfører 24 andelsboliger på Skovhøj 45-91 i Kolt/Hasselager, bestående af 2 forskellige typer på henholdsvis 95 og 110 m².
Boligerne er beliggende med udsigt over Århus by og direkte op af smuk natur.
Kolt/Hasselager er en forstad til Aarhus som er velforsynet med skole, børnehaver, fritidsaktiviteter, lokalcentre samt en daglige handelsmuligheder. Fra Kolt/Hasselager går der hvert 15 min. busforbindelse til Århus, som kun ligger 8-12 km væk, derudover ligger motorvej E45, som forbinder Kolt/Hasselager med resten af Danmark og verden, kun få min. kørsel derfra.
Hasselager-Kolt har et indbyggertal på omkring 7.500.
Hasselager er bemærkelsværdig for sine store industriarealer, hvor mange aarhusfirmaer hører til.
Hasselager ligger i Aarhus Kommune og hører til Region Midtjylland.
Plantegninger
Type 95 m² - 15 stk.
Type 110 m² - 8 stk.
Beliggenhedsplan
