Kunne lignende byggerier have interesse for dig?
Skriv dig op, så holder vi dig opdateret om kommende projekter.
Byggeår: 2015
Kildeagertoften – Kolt/Hasselager
Alle boliger er solgt, og afleveret til deres nye ejer
Beskrivelse
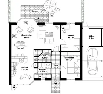
Vibe-Huse A/S har opført 11 ejerboliger på Kildeagertoften i Kolt/Hasselager, bestående af 3 forskellige typer på henholdsvis 111, 125 og 139 m².
Boligerne er beliggende i naturskønne omgivelser, med fantastisk udsigt over Aarhus by.
Kolt/Hasselager er en forstad til Aarhus som er velforsynet med skole, børnehaver, fritidsaktiviteter, lokalcentre samt en daglige handelsmuligheder.
Fra Kolt/Hasselager går der hvert 15 min. busforbindelse til Århus, som kun ligger 8-12 km væk, derudover ligger motorvej E45, som forbinder Kolt/Hasselager med resten af Danmark og verden, kun få min. kørsel derfra.
Hasselager-Kolt har et indbyggertal på omkring 7.500.
Hasselager er bemærkelsværdig for sine store industriarealer, hvor mange aarhusfirmaer hører til.
Hasselager ligger i Aarhus Kommune og hører til Region Midtjylland.
Plantegninger
Type 111m² - 2 stk.
Type 125m² - 6 stk.
Type 139m² - 3 stk.
Beliggenhedsplan
