Kunne lignende byggerier have interesse for dig?
Skriv dig op, så holder vi dig opdateret om kommende projekter.
Byggeår: 2002
Højgårdshaven – Hinnerup
Andelsboligforeningen
Alle boliger er solgt, og afleveret til deres nye ejer
Beskrivelse
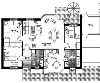
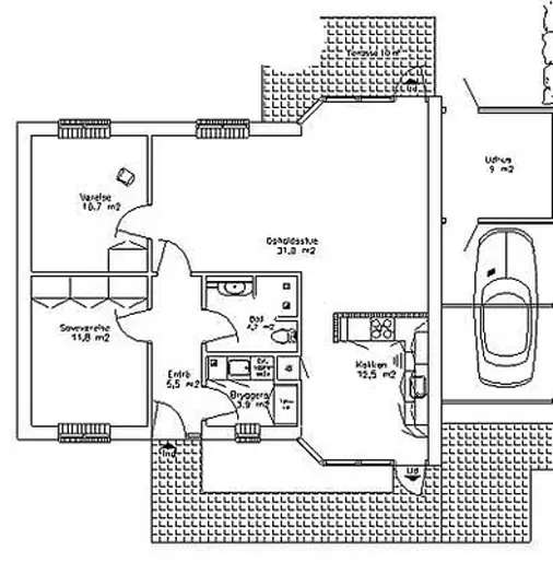
Vibe-Huse A/S har opført 24 andelsboliger på Højgårdshaven 1 – 35 i Hinnerup, bestående af 2 forskellige typer på henholdsvis 95 og 110 m².
Boligerne er beliggende med udsigt over rekreativt område, tæt ved skole, indkøb og fritidsaktiviteter.
Hinnerup er en stationsby i Østjylland med omkring 8.000 indbyggere, der er det administrative centrum i Favrskov Kommune i Region Midtjylland. Byen er beliggende 12 km nordvest for Aarhus C og fungerer i praksis som en forstad til denne, idet en del beboere pendler ind til domkirkebyen. Hinnerup er stort set vokset sammen med Søften i syd og de to byområder har tilsammen 10.500 indbyggere.
Hinnerup ligger i Favrskov Kommune og hører til Region Midtjylland.
Plantegninger
Type 95 m² - 16 stk.
Type 110 m² - 8 stk.
Beliggenhedsplan
